21
$499,999 Sale
Listed 60 days ago
113 EAST 38TH Street
· 2
· 1.0
· 3
· 905
Key Facts
Key facts for 113 EAST 38TH Street
Property Type
House, House
Parking
Garage: No, 3 parking
MLS #
40758539
Size
905 sqft
Basement
Partially finished, Full (Partially finished)
Listed on
-
Lot size
-
Tax
-
Days on Market
-
Year Built
1941
Maintenance Fee
-
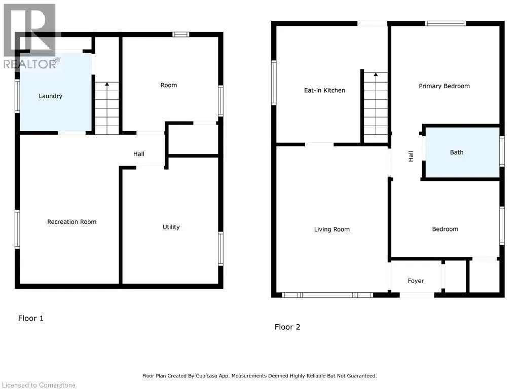
Description
This charming 2-bedroom, 1-bath bungalow is brimming with opportunity in one of the city’s highly sought-after neighbourhoods. Whether you’re an investor, flipper, or first-time home buyer looking to create your dream home, this property offers the perfect blank canvas. Sitting on a generous lot wit...h mature trees and great curb appeal, the home boasts solid bones and classic bungalow layout. Inside, it needs some TLC—but the possibilities are endless. Renovate, redesign, or rebuild—it's up to you! Nestled on a quiet, family-friendly street this house is perfectly located close to schools, parks, shopping, a hospital and public transit. Don’t miss this rare opportunity to unlock the value of a diamond in the rough in an unbeatable location. Room dimensions from third party source. (id:10452)
Similar Properties (No results)
Room Types
4pc Bathroom
-
Dimensions 5'2'' x 7'6''
38.75 sqft
Bedroom
-
Dimensions 10'1'' x 11'1''
111.76 sqft
Bedroom
-
Dimensions 7'9'' x 11'1''
85.9 sqft
Listing courtesy of: Keller Williams Edge Realty
This REALTOR.ca listing content is owned and licensed by REALTOR® members of The Canadian Real Estate Association.