49
$464,900 Sale
Listed 13 hours ago
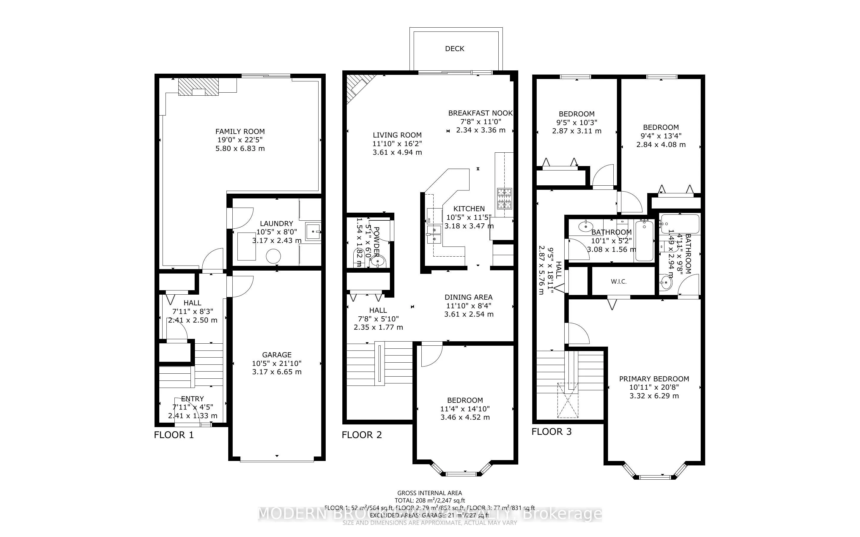
1140 Millwood Avenue
· 3
· 3
· 3
· 2000-2500
Listing History
Buy/Sell/Terminated/Expired listing history for 1140 Millwood Avenue
Key Facts
Key facts for 1140 Millwood Avenue
Property Type
Townhome, 3-Storey
Parking
Attached 1 garage, 3 parking
MLS #
X12455739
Size
2000-2500 sqft
Basement
Finished with Walk-Out
Listed on
2025-10-09
Lot size
20 x 100.49
Tax
$3,568 /yr
Days on Market
1
Approximate Age
31-50
Maintenance Fee
-
Description
Welcome to 1140 Millwood Ave! The expression "don't judge a book by its cover" applies here and you will be pleasantly surprised with how much living space these beautiful townhouses provide. Three or four bedrooms, 2.5 baths, and fully finished on all three levels with a walk-out basement. To welc...ome you home, the front yard has been developed with attractive gardens with stone edging. With morning sun, the two large front bow windows flood the living (currently being used as an office/guest bedroom) and primary bedroom with natural light. The living room had an additional wall + door added which makes it great for a main floor bedroom/office/hobby room/guest room - your choice! Recently repainted so you can move right in and make it your own. Carpet free with beautiful custom flooring. Open concept main floor with Oak kitchen (appliances incl.), dining & family room with cozy nat. gas fireplace. The convenient kitchen peninsula allows you to stay connected with family and guests. Triple patio doors keep the space bright and the balcony is a great place to enjoy afternoon sun. Upstairs boasts a huge primary suite with walk-in closet & 4pce ensuite plus two more good size bedrooms which share another 4pce bath. The lower level has access to your garage, generous mudroom with closets, separate utility/laundry, a fantastic L-shaped rec room with natural gas fireplace with built-in cabinets/shelves & a patio door to a beautiful backyard. The backyard has been transformed to enjoy nature with perennial gardens/small trees - a peaceful surrounding - with mature trees in neighbouring yards that help provide privacy. This home has it all including gorgeous hardwood stairs/iron railing, natural gas furnace, central a/c and more! Walking distance to schools, parks, shopping, restaurants, recreation, Brock Trails, Mac Johnson Wildlife & more. A great home for a couple, families or those seeking an investment opportunity (St. Lawrence College walking distance). A MUST see!
Similar Properties (No results)
Room Types
Bathroom
2 Pc Bath, Ceramic Floor, Pedestal Sink
Dimensions 5.97 x 5.05 feet
30.15 sqft
Bathroom
4 Pc Ensuite, Pedestal Sink, Ceramic Backsplash
Dimensions 9.65 x 4.89 feet
47.19 sqft
Bedroom
Double Closet, Closet Organizers, West View
Dimensions 10.2 x 9.42 feet
96.08 sqft
Courtesy of: MODERN BROCK GROUP REALTY